Gepflegte Dachgeschosswohnung in Aschendorf
Wohnung zur Miete in Papenburg

Beschreibung

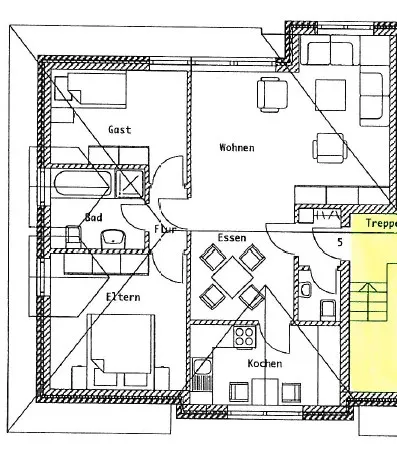
Wohn-/Esszimmer, 2 Schlafzimmer, Küche, Bad/WC mit Dusche und Badewanne, Gäste-WC, Windfang, Kellerraum

Die Wohnfläche beträgt ca. 62 m²

Die Kosten für Strom, Wasser und Abwasser sind vom Mieter direkt an das Versorgungsunternehmen zu zahlen.

Lage

Zentrale, ruhige Sackgassenlage von Aschendorf

Sonstiges

Dieses Angebot ist freibleibend und unverbindlich. Alle genannten Informationen, auch evtl. Zeichnungen, beruhen auf uns erteilten Angaben oder ausgehändigten Unterlagen; für die Richtigkeit wird keine Gewähr übernommen.
Besichtigungen sind nach vorheriger Terminabsprache mit uns möglich.

Ansprechpartner

Aiyana Richter

Telefon: +49 49612185
Telefax: +49 49611559

info@deweerdt.de

Kontakt aufnehmen

Wohnung zur Miete

Miete zzgl. NK 410 €
Nebenkosten 170 €
Miete inkl. NK 580 €
Adresse 26871 Papenburg
Wohnfläche ca. 62 m²
Zimmer 3
Objekt-Nr. 1001(1/5)

Energieverbrauchsausweis

Endenergieverbrauch 109 kWh/(m²*a)
Energieverbrauch inkl. Warmwasser Nein
Befeuerungsart Gas
Baujahr (Energieausweis) 1995
Energieeffizienzklasse D
Energieausweis 2014

0200400+

Ausstattung

Anzahl Stellplätze 1
Anzahl Zimmer 3
Bad mit Dusche, Wanne, Fenster
Baujahr 1995
Befeuerungsart Gas
Gäste-WC
Hebebühne
Kran
Rampe
Stellplätze 1
Stellplatzart Freiplatz
Unterkellert
verfügbar ab 2025-10-15
Wasch/Trockenraum
Zustand gepflegt

Erfolg! Vielen Dank für Ihre Bewertung.

Fehler! Bitte füllen Sie alle Felder aus.