Gepflegte Obergeschosswohnung mit Blick auf den Leeraner Hafen
Wohnung zur Miete in Leer
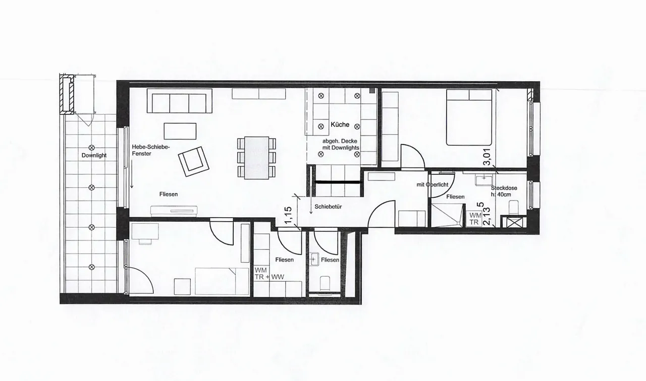
Beschreibung
Diese helle 3-Zimmer-Etagenwohnung bietet auf 103 m² Wohnfläche ein modernes Wohnambiente. Das 2018 erbaute und gepflegte Objekt verfügt über eine Loggia, die zusätzlichen Freiraum schafft. Die Wohnung ist mit einer Einbauküche ausgestattet und bietet ein Badezimmer mit Dusche sowie ein separates Gäste-WC.
Eine Fußbodenheizung sorgt für angenehme Wärme. Die Energieeffizienzklasse A unterstreicht den zeitgemäßen Standard. Ein Personenaufzug ermöglicht barrierefreien Zugang. Zu der Wohnung gehört ein Kellerraum.
Ein Tiefgaragenstellplatz ist ebenfalls vorhanden. Ab dem Mai/Juni 2026 ist die Wohnung verfügbar.
Ausstattung
Die Wohnanlage besticht durch moderne Architektur in zeitgemäßer Ausstattung, u. a. Fußbodenheizung, barrierefreie Bäder und Fahrstuhl.
Lage
26789 Leer Stadtmitte
Die Innenstadt mit seiner attraktiven Fußgängerzone, die Altstadt mit seinen historischen Gebäuden und der Freizeithafen befinden sich direkt vor der Haustür.
Das Stadtquartier Nesse bietet Raum für Wohnen und Arbeiten am Wasser. Die Uferpromenade entlang des Freizeithafens entwickelte sich in den letzten Jahren zu einem lebendigen, modernen Stadtteil.
Sonstiges
Dieses Angebot ist freibleibend und unverbindlich. Alle genannten Informationen - auch evtl. Zeichnungen - beruhen auf uns erteilten Angaben oder ausgehändigten Unterlagen; für die Richtigkeit wird keine Gewähr übernommen.
Besichtigungen sind nach vorheriger Terminabsprache mit uns möglich.
Kontakt aufnehmen
Gepflegte Obergeschosswohnung mit Blick auf den Leeraner Hafen
Wohnung zur Miete
| Miete zzgl. NK 1.100 € |
| Nebenkosten 150 € |
| Miete inkl. NK 1.250 € |
| Heizkosten 100 € |
| Adresse 26789 Leer |
| Wohnfläche ca. 103 m² |
| Zimmer 3 |
| Objekt-Nr. 700-23(1/74) |
Energieverbrauchsausweis
| Endenergieverbrauch 33,40 kWh/(m²*a) |
| Energieverbrauch inkl. Warmwasser Nein |
| Befeuerungsart Gas, Elektro |
| Heizungsart Fußbodenheizung |
| Baujahr (Energieausweis) 2018 |
| Energieeffizienzklasse A |
| Gültig bis 16.03.2032 |
| Energieausweis Ausstellungsdatum 2022-03-17 |
0200400+
Ausstattung
| Abstellraum |
| Anzahl Loggias 1 |
| Anzahl Stellplätze 1 |
| Anzahl Zimmer 3 |
| Bad mit Dusche |
| Baujahr 2018 |
| Befeuerungsart Gas, Elektro |
| Fahrstuhl Personen |
| Gäste-WC |
| Hebebühne |
| Heizungsart Fußbodenheizung |
| Kran |
| Küche Einbauküche |
| Rampe |
| Tiefgaragenstellplätze 1 |
| Stellplatzart Tiefgarage |
| Unterkellert |
| verfügbar ab 2026-05-15 |
| Zustand gepflegt |