Moderne Wohnung in zentraler Lage von Papenburg-Untenende WHG 2
Wohnung zur Miete in Papenburg

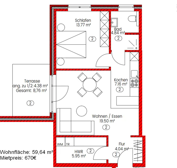
Beschreibung

Diese attraktive Wohnung befindet sich in einer modernen Neubau-Wohnanlage an der Kirchstraße im beliebten Stadtteil Papenburg-Untenende. Die Lage überzeugt durch ihre Nähe zum Hauptkanal mit vielfältigen Einkaufsmöglichkeiten, Cafés, Restaurants und weiteren Einrichtungen des täglichen Bedarfs, alles bequem fußläufig erreichbar.
Die Wohnung bietet eine durchdachte Raumaufteilung mit Wohn-/Essbereich samt offener Küche. Vom Wohnbereich aus gelangt man auf die überdachte Terrasse und ist somit ganzjährig nutzbar.
Ein geräumiges Schlafzimmer, ein modernes Bad, sowie ein praktischer Hauswirtschaftsraum runden das Raumangebot.

Ausstattung

-Die Ausstattung der Wohnung ist hochwertig und modern:
-Einbauküche im Mietpreis enthalten
-Terrasse mit Überdachung
-Hauswirtschaftsraum
-Fußbodenheizung

Lage

Die Wohnung liegt in einer, modernen Wohnanlage (Baujahr 2025), die durch ihre zentrale, aber dennoch angenehme Wohnlage besticht. Ein Aufzug ist im Gebäude vorhanden und sorgt für zusätzlichen Komfort.

Sonstiges

Die Wohnung wird neu renoviert (Neubauzustand) übergeben. Ein Energieausweis liegt nicht vor. Der Energieausweis wird spätestens bei der Fertigstellung des Neubaus vorliegen.

Ansprechpartner

Michael de Weerdt

Telefon: +49 4961 2185
Telefax: +49 4961 1559

info@deweerdt.de

Kontakt aufnehmen

Wohnung zur Miete

Miete zzgl. NK 670 €
Nebenkosten 190 €
Miete inkl. NK 860 €
Adresse 26871 Papenburg
Wohnfläche ca. 59,64 m²
Zimmer 2
Objekt-Nr. 117

Energiebedarfsausweis

Endenergiebedarf 12,20 kWh/(m²*a)
Energieverbrauch inkl. Warmwasser Nein
Befeuerungsart Luft/Wasser-Wärmepumpe
Heizungsart Fußbodenheizung
Wesentlicher Energieträger Strom
Baujahr (Energieausweis) 2023
Energieeffizienzklasse A+
Gültig bis 24.10.2035
Energieausweis Ausstellungsdatum 2025-10-24

0200400+

Ausstattung

Alter Neubau
Anzahl Zimmer 2
Befeuerungsart Luft/Wasser-Wärmepumpe
Fahrstuhl Personen
Gäste-WC
Hebebühne
Heizungsart Fußbodenheizung
Kran
Küche Einbauküche
Rampe
Stellplatzart Freiplatz
verfügbar ab 2025-11-01

Erfolg! Vielen Dank für Ihre Bewertung.

Fehler! Bitte füllen Sie alle Felder aus.