Moderne Wohnung in zentraler Lage von Papenburg-Untenende WHG 9
Wohnung zur Miete in Papenburg

Beschreibung

Diese attraktive Wohnung befindet sich in einer modernen Neubau-Wohnanlage an der Kirchstraße im beliebten Stadtteil Papenburg-Untenende. Die Lage überzeugt durch ihre Nähe zum Hauptkanal mit vielfältigen Einkaufsmöglichkeiten, Cafés, Restaurants und weiteren Einrichtungen des täglichen Bedarfs, alles bequem fußläufig erreichbar.
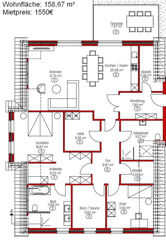
Die großzügige Wohnung bietet eine durchdachte Raumaufteilung mit einem großzügigen und lichtdurchfluteten Wohn-/Essbereich samt offener Küche. Vom Wohnbereich aus gelangt man auf die überdachte Dachterrasse, welche somit ganzjährig nutzbar ist.
Ein geräumiges Schlafzimmer, ein modernes Bad, ein Büro/Zimmer, ein Gästebad, ein Gäste-Schlafzimmer, ein Windfang, ein praktischer Hauswirtschaftsraum, sowie zwei Abstellräume runden das Raumangebot ab.

Ausstattung

-Die Ausstattung der Wohnung ist hochwertig und modern:
-Einbauküche im Mietpreis enthalten
-Großzügige Dachterrasse
-Abstellräume
-Hauswirtschaftsräume
-Aufzug ist vorhanden
-Fußbodenheizung

Lage

Die Wohnung liegt in einer, modernen Wohnanlage (Baujahr 2025), die durch ihre zentrale, aber dennoch angenehme Wohnlage besticht. Ein Aufzug ist im Gebäude vorhanden und sorgt für zusätzlichen Komfort.

Sonstiges

Die Wohnung wird neu renoviert (Neubauzustand) übergeben. Ein Energieausweis liegt nicht vor. Der Energieausweis wird spätestens bei der Fertigstellung des Neubaus vorliegen.

Ansprechpartner

Michael de Weerdt

Telefon: +49 4961 2185
Telefax: +49 4961 1559

info@deweerdt.de

Kontakt aufnehmen

Wohnung zur Miete

Miete zzgl. NK 1.550 €
Nebenkosten 400 €
Miete inkl. NK 1.950 €
Adresse 26871 Papenburg
Wohnfläche ca. 158,67 m²
Zimmer 4
Objekt-Nr. 121

Energieausweis

Befeuerungsart Luft/Wasser-Wärmepumpe
Heizungsart Fußbodenheizung
Energieausweis ohne, liegt zur Besichtigung vor

0200400+

Ausstattung

Abstellraum
Alter Neubau
Anzahl Badezimmer 2
Anzahl Zimmer 4
Befeuerungsart Luft/Wasser-Wärmepumpe
Fahrstuhl Personen
Gäste-WC
Hebebühne
Heizungsart Fußbodenheizung
Kran
Küche Einbauküche
Rampe
Stellplatzart Freiplatz
verfügbar ab 2025-11-01

Erfolg! Vielen Dank für Ihre Bewertung.

Fehler! Bitte füllen Sie alle Felder aus.