Obergeschosswohnung mit Dachterrasse in Papenburg-Untenende
Wohnung zur Miete in Papenburg

Beschreibung

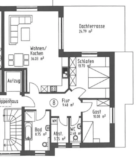
Wohn-/Esszimmer mit integriertem Kochbereich inkl. Einbauküche, 2 Zimmern, Bad/WC, Gäste-WC, HWR, Flur, Dachterrasse

Die Wohnfläche beträgt ca. 96,67 m².

1 Pkw-Stellplatz mit Carport.

Die Kosten für Strom sind von dem Mieter direkt an das Versorgungsunternehmen zu zahlen.

Lage

26871 Papenburg-Untenende

Die Wohnung befindet sich in zentrumsnaher Wohnlage. Einkaufsmöglichkeiten, Banken, Apotheken etc. sind fußläufig erreichbar.

Sonstiges

Dieses Angebot ist freibleibend und unverbindlich. Alle genannten Informationen – auch evtl. Zeichnungen – beruhen auf uns erteilten Angaben oder ausgehändigten Unterlagen; für die Richtigkeit wird keine Gewähr übernommen.

Besichtigungen sind nach vorheriger Terminabsprache mit uns möglich.

Ansprechpartner

Aiyana Richter

Telefon: +49 49612185
Telefax: +49 49611559

info@deweerdt.de

Kontakt aufnehmen

Wohnung zur Miete

Miete zzgl. NK 840 €
Nebenkosten 130 €
Miete inkl. NK 970 €
Heizkosten 90 €
Adresse 26871 Papenburg
Wohnfläche ca. 96,67 m²
Zimmer 3
Objekt-Nr. 261

Energiebedarfsausweis

Endenergiebedarf 29,80 kWh/(m²*a)
Energieverbrauch inkl. Warmwasser Nein
Befeuerungsart Elektro
Baujahr (Energieausweis) 2015
Energieeffizienzklasse A+
Energieausweis 2014
Energieausweis Ausstellungsdatum 2016-11-03

0200400+

Ausstattung

Abstellraum
Anzahl Stellplätze 1
Anzahl Zimmer 3
Bad mit Dusche, Wanne
Baujahr 2015
Befeuerungsart Elektro
Fahrstuhl Personen
Gäste-WC
Hebebühne
Kran
Küche Einbauküche
Rampe
Stellplätze 1
Stellplatzart Freiplatz
verfügbar ab 2026-03-01
Zustand gepflegt

Erfolg! Vielen Dank für Ihre Bewertung.

Fehler! Bitte füllen Sie alle Felder aus.