Wohnberechtigungsschein erforderlich! Obergeschosswohnung mit Balkon in Papenburg
Wohnung zur Miete in Papenburg
Beschreibung
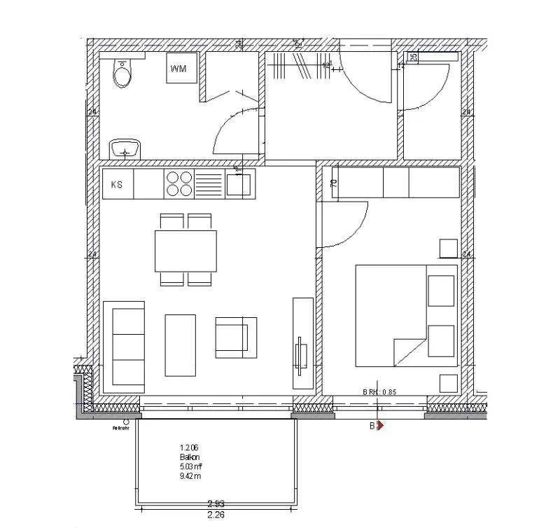
Obergeschosswohnung Nr. 1.2.
Wohn-/Esszimmer, Schlafzimmer, Bad/WC, Abstellraum, Flur, Terrasse, ca. 48 m² Wohnfläche
Pkw-Abstellplatz, Dachbodenraum, Fahrradraum zur gemeinschaftlichen Nutzung
Ausstattung
Das Mehrfamilienhaus ist mit einer Wärmepumpenheizung, dreifachverglasten Fenstern mit elektrischen Rollläden und Fußbodenheizung ausgestattet. Alle Wohnungen erhalten Fliesen- und Vinylböden sowie eine Einbauküche. Zusätzlich steht jeder Wohnung ein Pkw-Stellplatz und ein gemeinschaftlicher Fahrradraum zur Mitbenutzung zur Verfügung.
Lage
26871 Papenburg-Untenende
Sonstiges
Bei der Wohnung handelt es sich um eine mit öffentlichen Mitteln geförderte Wohnung, für die ein Wohnberechtigungsschein erforderlich ist. Die Wohnung ist gedacht für eine alleinstehende Person. Einkommensgrenze: 21.250,00 Euro
Weitere Infos zum Wohnberechtigungsschein
https://openrathaus.papenburg.de/dienstleistungen/-/egov-bis-detail/dienstleistung/59887/show
Dieses Angebot ist freibleibend und unverbindlich. Alle genannten Informationen - auch evtl. Zeichnungen - beruhen auf uns erteilten Angaben oder ausgehändigten Unterlagen; für die Richtigkeit wird keine Gewähr übernommen.
Kontakt aufnehmen
Wohnberechtigungsschein erforderlich! Obergeschosswohnung mit Balkon in Papenburg
Wohnung zur Miete
| Miete zzgl. NK 285 € |
| Nebenkosten 75 € |
| Miete inkl. NK 360 € |
| Heizkosten 75 € |
| Adresse 26871 Papenburg |
| Wohnfläche ca. 48 m² |
| Zimmer 2 |
| Objekt-Nr. 1257(1/19) |
Energiebedarfsausweis
| Endenergiebedarf 14,30 kWh/(m²*a) |
| Energieverbrauch inkl. Warmwasser Nein |
| Befeuerungsart Elektro |
| Heizungsart Fußbodenheizung |
| Energieeffizienzklasse A+ |
| Energieausweis 2014 |
0200400+
Ausstattung
| Anzahl Balkone 1 |
| Anzahl Stellplätze 1 |
| Anzahl Zimmer 2 |
| Bad mit Dusche |
| Baujahr 2022 |
| Befeuerungsart Elektro |
| Gäste-WC |
| Hebebühne |
| Heizungsart Fußbodenheizung |
| Kabel/Sat-TV |
| Kran |
| Küche Einbauküche |
| Rampe |
| Stellplätze 1 |
| Stellplatzart Freiplatz |
| WBS erforderlich |
| Zustand gepflegt |